Жилой комплекс «Параллель» в квартале 145 г. Якутска (1 этап)
О проекте
О проекте:
- Заказчик: ООО СЗ «Строй развитие»
- Ген. подрядчик: ООО «ИНС»
- Местоположение: г.Якутск, ул.К.Цеткин, д.23
- Срок сдачи: 3 квартал 2027 г.
- Количество квартир: 265
- Этажей: 16
Общая площадь квартир по проекту (кв.м.):
- 1-комн: от 30 до 41 кв.м.
- 2-комн: от 50 до 60 кв.м.
- 3-комн: от 67 до 92 кв.м.
- 4- комн: от 107 до 137 кв.м.
- 5 –комн: 197 кв.м.
Описание объекта:
- Многоквартирный жилой дом с нежилыми помещениями
- Детские игровые площадки, спортивная площадка и площадка для отдыха взрослого населения на уровне 3-го этажа.
- 2-подъездный 16-ти этажный многоквартирный жилой дом.
- 1 этаж – входная группа, консьержная, переговорная, зона отдыха, вестибюль, колясочная, нежилые помещения общественного назначения.
- В доме запроектированы 1,2,3,4,5-комнатные квартиры.
Благоустройство:
Проезды к жилому дому с асфальтобетонным покрытием, тротуары с плиточным мощением, по периметру здания предусмотрены парковочные места для легковых автомобилей. Ограждение территории по периметру. Видеонаблюдение.
Инженерное обеспечение:
- Отопление – централизованное; индивидуальные приборы учета тепла.
- Холодное водоснабжение – централизованное; индивидуальные приборы учета ХВС
- Горячее водоснабжение – приготовление в ИТП; индивидуальные приборы учета ГВС
- Вентиляция: естественная, вытяжная через вентиляционные каналы; приточные клапаны в квартирах;
- Пожарное водоснабжение;
- Канализация — централизованная;
- Электроснабжение – централизованное; индивидуальные приборы учета электроэнергии.
- Домофонная связь, интернет, пожарная сигнализация.
Внутренняя отделка квартир:
- Цементно-песчаная стяжка полов;
- Улучшенная штукатурка стен;
- Установка приборов отопления (радиаторы конвекционного типа);
- Внутренняя электропроводка с розетками, выключателями;
- Установка пластиковых окон;
- Установка металлической входной двери;
- Естественная приточная и вытяжная вентиляция, установка приточных клапанов;
- Остекленные лоджии.
Места общего пользования:
- Закрытая территория;
- 2 лифта в подъезде;
- Консьержная, колясочная, переговорная, зона отдыха, вестибюль.
Заключаются договоры долевого участия и договоры страхования гражданской ответственности застройщика.
Телефон отдела продаж: 8(924) 593-51-62
Все разрешительные документы, в том числе проектная декларация объекта размещены на сайте наш.дом.рф
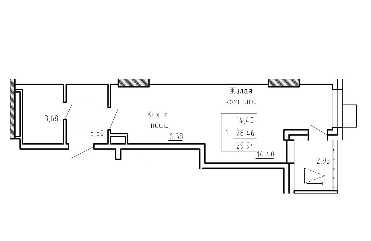
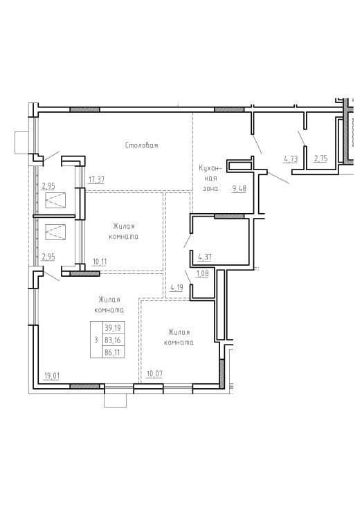
Планировки
Галерея
- 04.01.2025
- 03.12.2025
- 05.11.2025
- 02.10.2025
- 04.09.2025
- 04.08.2025
- 17.07.2025













































